Helmstedt

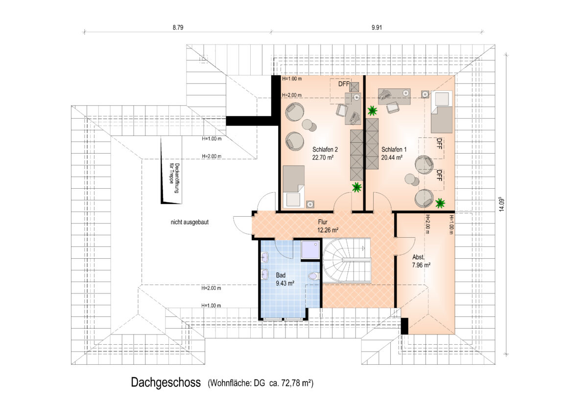
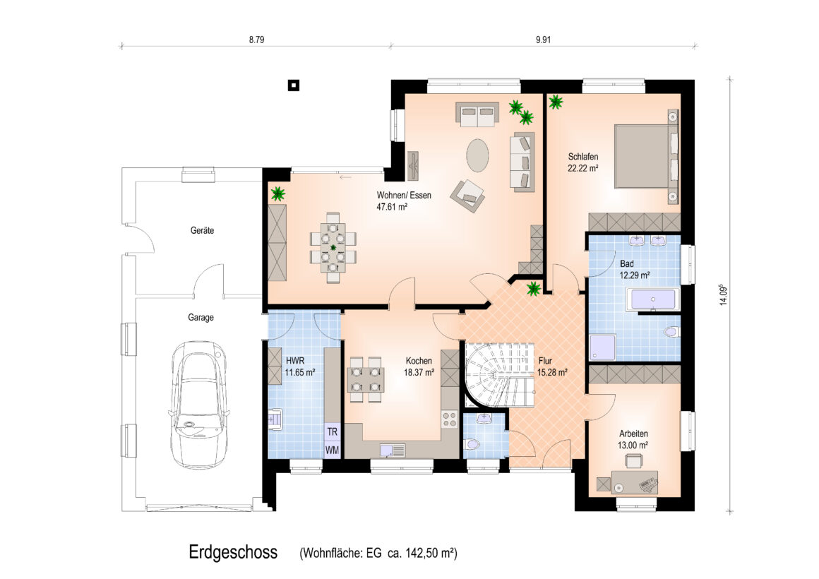
„Helmstedt„ präsentiert sich als zeitloser Bungalow, das durch ein Walmdach abgerundet wird. Drei Schlafzimmer und zwei Badezimmer verteilen sich auf zwei Ebenen. Ideal für mehrgenerationale Familien mit viel Platzbedarf. Der Eingangsbereich führt in einen geräumigen Flur, von dem aus die Treppe ins Obergeschoss führt.

Erhalten Sie alle relevanten Infos, um ihr Bauvorhaben umzusetzen:
  • Gesamtplan in M=1:100
  • Berechnungen Volumen
  • Berechnungen Nutzfläche
  • Bebaute Fläche
329,99 

Grundrisse

Gebäudedaten

Badezimmer2
DachformWalmdach
GebäudetypBungalow
Geschosse2
Nutzfläche215 m²
Schlafzimmer3
SonstigesTreppe im Eingangsflur
Volumen1008 m³
Länge13,6 m
Breite14 m
Bruttogeschossfläche452 m²

Die ausführlichen Gebäudedaten, Berechnungen, Brutto-Rauminhalte und den Gesamtplan als Download erhalten Sie für nur

329,99 

Baukostenschätzung für Helmstedt

Berechnen Sie die geschätzten Baukosten basierend auf regionalen Faktoren (BKI, Stand 01.12.2025) und Gebäudespezifikationen.

Standort auswählen

Wählen Sie den Kreis aus, in dem gebaut werden soll. Die Kosten variieren je nach Region.

📊

Kostenberechnung

Wählen Sie einen Kreis aus, um die geschätzten Baukosten für Ihre Region zu berechnen.

Von uns für Sie:

Ein kostenloses Premium- Beispielprojekt!