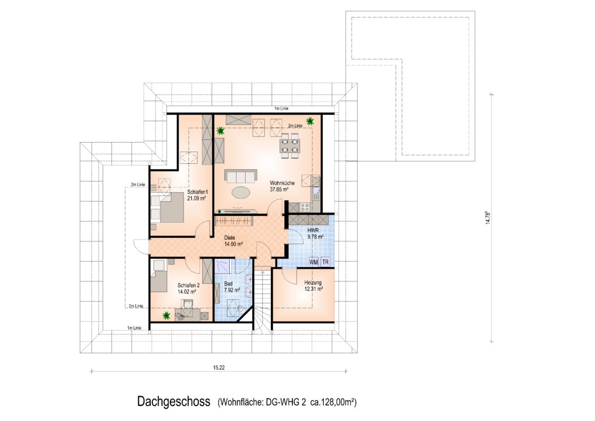
Grundrisse
Gebäudedaten
| Badezimmer | 2 |
| Dachform | Walmdach |
| Gebäudetyp | Bungalow |
| Geschosse | 2 |
| Nutzfläche | 275 m² |
| Schlafzimmer | 4 |
| Sonstiges | Treppe im Eingangsflur |
| Sonstiges | Wohnküche |
| Volumen | 844 m³ |
| Länge | 15,2 m |
| Breite | 14,7 m |
| Bruttogeschossfläche | 403 m² |



