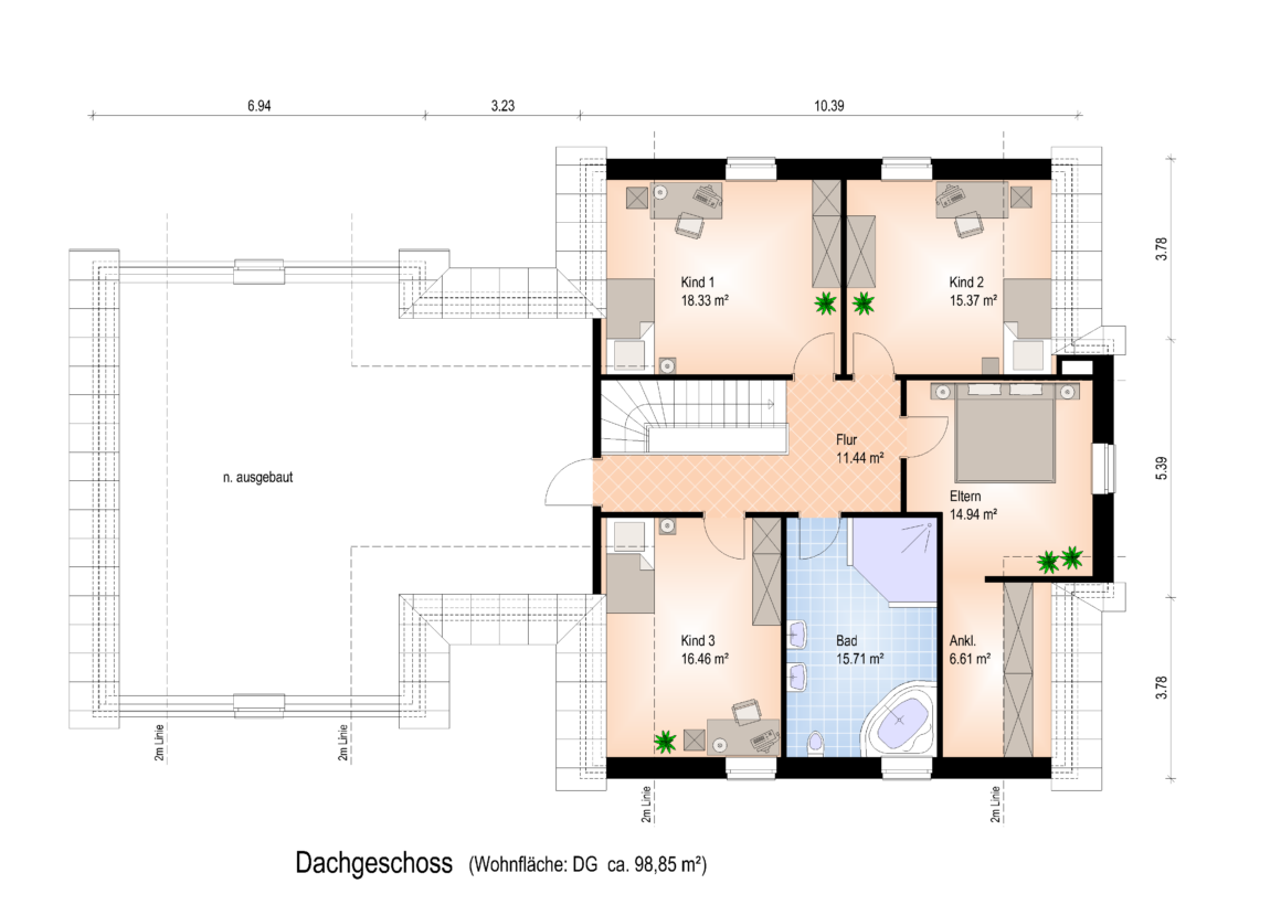
Grundrisse
Gebäudedaten
| Badezimmer | 1 |
| Dachform | Satteldach |
| Gebäudetyp | Giebelhaus |
| Geschosse | 2 |
| Nutzfläche | 208 m² |
| Schlafzimmer | 4 |
| Sonstiges | Galerie |
| Sonstiges | Treppe im Eingangsflur |
| Volumen | 909 m³ |
| Länge | 11,1 m |
| Breite | 12,9 m |
| Bruttogeschossfläche | 297 m² |



