Grundrisse
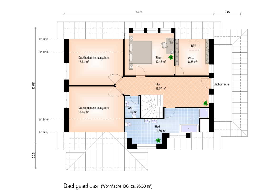
Gebäudedaten
| Badezimmer | 1 |
| Dachform | Satteldach |
| Gebäudetyp | Giebelhaus |
| Geschosse | 2 |
| Nutzfläche | 207 m² |
| Schlafzimmer | 1 |
| Sonstiges | Treppe im Eingangsflur |
| Volumen | 841 m³ |
| Länge | 16,1 m |
| Breite | 13,2 m |
| Bruttogeschossfläche | 326 m² |



